3階は現在募集がありません
2フロア募集区画あり

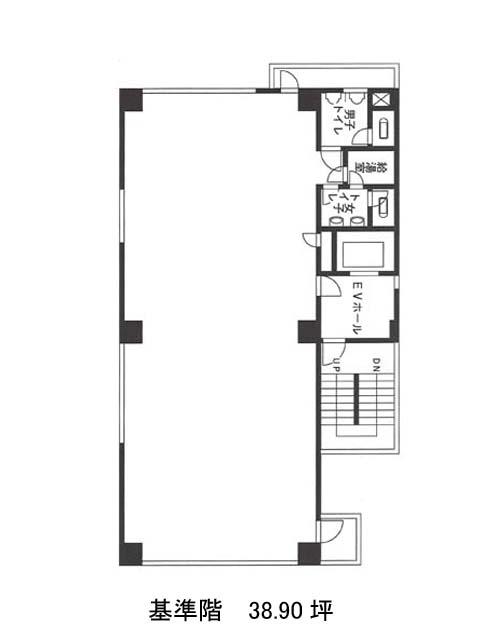
KAYA水道橋 3階

前の写真 次の写真

物件概要

物件番号

389-00049-30

物件名

KAYA水道橋

所在地

面積

38.72坪

賃料(共益費含)


入居日

募集終了

保証金

礼金

更新料

償却費

竣工

1987年3月

構造

SRC

規模

地上7階

トイレ

男女別

空調

個別空調

エレベーター

セキュリティ

駐車場

耐震

新耐震基準

基準階天井高

3000mm

空室延床面積

72.78坪

最寄駅

情報更新日

2025/11/17

KAYA水道橋のテナント募集中区画

階数 面積 賃料(共益費含む) 保証金 入居可能日 検討リスト 詳細
5 38.72坪 1,022,208円/月(26,400円/坪) 応相談 相談
7 34.06坪 899,184円/月(26,400円/坪) 応相談 相談
…新着物件

アクセス

KAYA水道橋の物件情報

KAYA水道橋(千代田区神田三崎町)は水道橋駅(西口)から徒歩2分の賃貸オフィスです。
KAYA水道橋は水道橋駅(西口)の他に飯田橋駅(A5番出口)徒歩8分、神保町駅(A2番出口)徒歩10分で利用も可能です。

近隣のエリア・駅から探す