KAYA水道橋のテナント募集中区画
| 階数 | 面積 | 賃料(共益費含む) | 保証金 | 入居可能日 | 検討リスト | 詳細 |
|---|---|---|---|---|---|---|
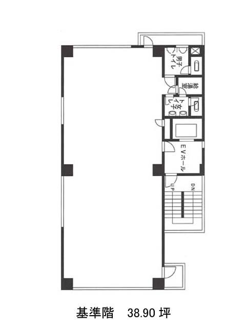
| 5 | 38.72坪 | 1,022,208円/月(26,400円/坪) | 応相談 | 相談 | ||
| 7 | 34.06坪 | 899,184円/月(26,400円/坪) | 応相談 | 相談 |
…新着物件
アクセス
KAYA水道橋の物件情報
KAYA水道橋(千代田区神田三崎町)は水道橋駅(西口)から徒歩2分の賃貸オフィスです。KAYA水道橋は水道橋駅(西口)の他に飯田橋駅(A5番出口)徒歩8分、神保町駅(A2番出口)徒歩10分で利用も可能です。

