5階は現在募集がありません
神田錦町ビル 5階
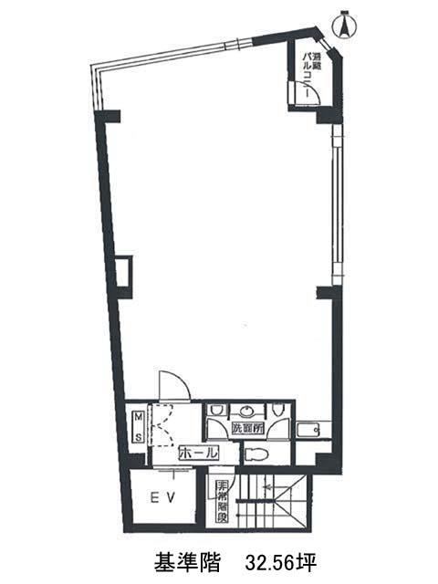
物件概要
神田錦町ビルのテナント募集中区画
現在、空室がございません。
アクセス
神田錦町ビルの物件情報
神田錦町ビル(千代田区神田錦町)は新御茶ノ水駅(B7番出口)から徒歩5分の賃貸オフィスです。神田錦町ビルは新御茶ノ水駅(B7番出口)の他に小川町駅(B7番出口)徒歩5分、神保町駅(A9番出口)徒歩5分で利用も可能です。

