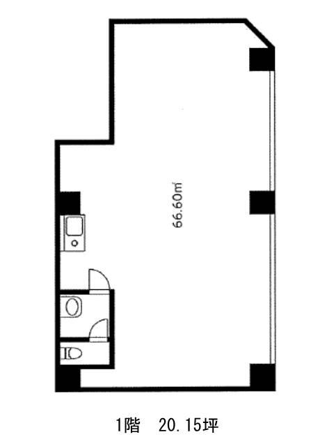
1階 1Aは現在募集がありません
カワベビル 1階 1A
物件概要
カワベビルのテナント募集中区画
現在、空室がございません。
アクセス
カワベビルの物件情報
カワベビル(千代田区神田錦町)は小川町駅(B7番出口)から徒歩5分の賃貸オフィスです。カワベビルは小川町駅(B7番出口)の他に新御茶ノ水駅(B7番出口)徒歩5分、竹橋駅(3b番出口)徒歩6分で利用も可能です。

