10階は現在募集がありません

興和一橋ビル 10階

前の写真 次の写真

物件概要

物件番号

394-00072-103

物件名

興和一橋ビル

所在地

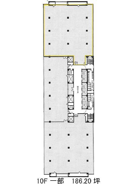
面積

186.19坪

賃料(共益費含)


入居日

募集終了

保証金

礼金

更新料

償却費

竣工

1970年7月

構造

SRC

規模

地上12階/地下3階

トイレ

男女別

空調

個別空調

エレベーター

セキュリティ

駐車場

耐震

耐震補強済み

基準階天井高

2550mm

空室延床面積

最寄駅

情報更新日

2024/12/25

興和一橋ビルのテナント募集中区画

現在、空室がございません。

アクセス

興和一橋ビルの物件情報

興和一橋ビル(千代田区神田錦町)は神保町駅(A9番出口)から徒歩2分の賃貸オフィスです。
1970年竣工、地上12階・地下3階建ての赤茶色のタイル張りが印象的な重厚感のある大型賃貸オフィスです。1999年にリニューアルされており、耐震補強工事済みで安心して入居して頂けます。一ツ橋交差点に位置しており、通風や採光性は良好でしょう。広々としたエントランス内にはエレベーターが6基、ビル内は有人警備と機械警備が併用されているため、セキュリティ面でも安心です。基準階フロアは約487坪と大変広く、個別空調・フリーアクセス完備、トイレは男女別となっており室外に設置されております。平置き式の駐車場には約200台収容可能で、車の利用も大変しやすくなっております。白山通りに面しており、周囲はコンビニや飲食店が点在しており便利な環境といえるでしょう。
興和一橋ビルは神保町駅(A9番出口)の他に竹橋駅(3a番出口)徒歩6分、新御茶ノ水駅(B7番出口)徒歩9分で利用も可能です。

近隣のエリア・駅から探す