4階は現在募集がありません
秋葉原鴻池ビル 4階
物件概要
秋葉原鴻池ビルのテナント募集中区画
現在、空室がございません。
アクセス
秋葉原鴻池ビルの物件情報
秋葉原鴻池ビル(千代田区神田佐久間町)は秋葉原駅(2番出口)から徒歩1分の賃貸オフィスです。地下鉄秋葉原駅2番出入り口目の前の好立地物件で視認性にも優れています。外観は光沢のあるライトカラーのタイル張りで清潔感があり、来訪者にも好印象でしょう。竣工年に関わらず綺麗なオフィスビルですよ。
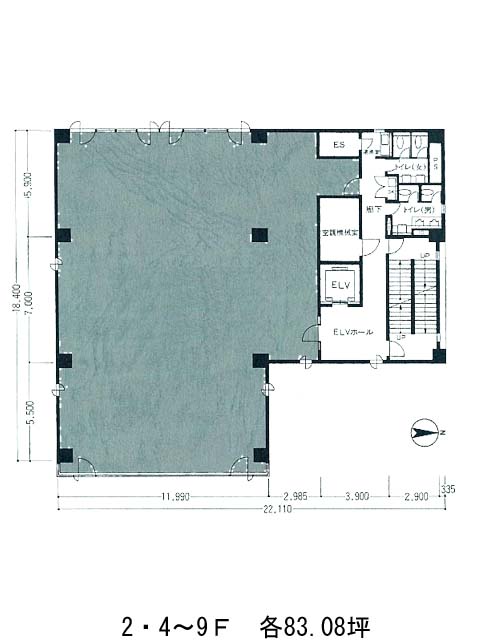
貸室は1フロア1テナント仕様で、基準の執務室は各83.08坪です。男女別トイレや給湯室などは全て室外にまとめて設置されているため、執務室としっかりメリハリがあります。その他OAフロア有、セキュリティは機械警備を導入しています。
周辺は店舗が多く、飲食や買い物には不自由しない環境です。秋葉原鴻池ビルは秋葉原駅(2番出口)の他に岩本町駅(A3番出口)徒歩4分、末広町駅(1番出口)徒歩10分で利用も可能です。

