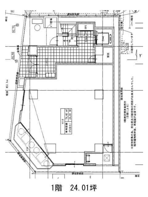
1階は現在募集がありません
メゾン・シャルール 1階
物件概要
メゾン・シャルールのテナント募集中区画
現在、空室がございません。
アクセス
メゾン・シャルールの物件情報
メゾン・シャルール(千代田区神田駿河台)は新御茶ノ水駅(B3a番出口)から徒歩2分の賃貸オフィスです。メゾン・シャルールは新御茶ノ水駅(B3a番出口)の他に小川町駅(B3番出口)徒歩3分、淡路町駅(A7番出口)徒歩5分で利用も可能です。

