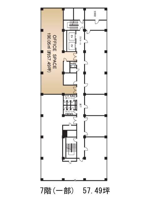
7階 分割は現在募集がありません
瀬川ビル 7階 分割


物件概要
瀬川ビルのテナント募集中区画
現在、空室がございません。
アクセス
瀬川ビルの物件情報
瀬川ビル(千代田区神田駿河台)は御茶ノ水駅(聖橋口)から徒歩1分の賃貸オフィスです。
御茶ノ水駅から徒歩1分ということで、アクセス良好のこのビルですが、その他設備面も大変充実した環境となっております。2方向が道路に面しているため、外光がしっかりと入ってくるので、明るく開放的な室内になっています。またタイルカーペットになっているため、下階への振動対策もバッチリです。2018年には耐震補強工事を実施、その他、男女別トイレ完備、敷地内には駐車場も併設されています。徒歩1分圏内にコンビニや飲食店があり、大変便利で、おすすめの物件です。
瀬川ビルは御茶ノ水駅(聖橋口)の他に新御茶ノ水駅(B1番出口)徒歩2分、小川町駅(B3番出口)徒歩7分で利用も可能です。