3階 301は現在募集がありません
越後屋ビル 3階 301
物件概要
越後屋ビルのテナント募集中区画
現在、空室がございません。
アクセス
越後屋ビルの物件情報
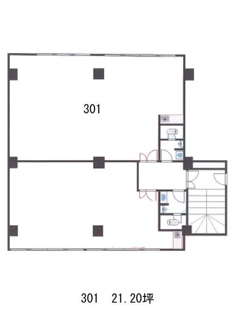
越後屋ビル(千代田区神田小川町)は神保町駅(A5番出口)から徒歩4分の賃貸オフィスです。1973年竣工、地上4階建てRC造のビルです。クリーム色の外壁で、明るい印象の外観をしています。貸室は正方形で、フロアの一箇所に共用部が集まる為動線がよいでしょう。男女別トイレ・給湯スペース・個別空調といった設備仕様をしています。セキュリティとして安心の機械警備が導入されています。近隣は日本大学や明治大学があり、アカデミックな雰囲気の漂うエリアです。スポーツショップや飲食店が充実しています。越後屋ビルは神保町駅(A5番出口)の他に新御茶ノ水駅(B3a番出口)徒歩6分、御茶ノ水駅(御茶ノ水橋口)徒歩7分で利用も可能です。

