1階は現在募集がありません
小川町進興ビル新館 1階
物件概要
小川町進興ビル新館のテナント募集中区画
現在、空室がございません。
アクセス
小川町進興ビル新館の物件情報
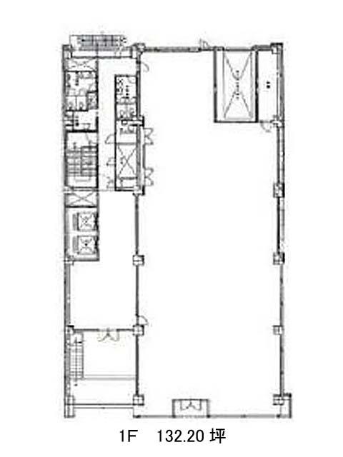
小川町進興ビル新館(千代田区神田小川町)は新御茶ノ水駅(B5番出口)から徒歩2分の賃貸オフィスです。本郷通りに面したビルです。外観は、ダークカラーのパネル貼りに黒のミラーウォールで重厚感があります。1972年竣工ですが、2005年に一部リニューアルしているため、経年を感じさせない綺麗な物件です。間取りは長方形に近いL字型で採光の良い空間です。柱があるものの、L字を大小2つの長方形に分けられる位置ですので、レイアウトに活かしやすいでしょう。室外共用部には男女別トイレと給湯室があります。周辺には飲食店が充実しているのでランチなどにも便利な環境です。小川町進興ビル新館は新御茶ノ水駅(B5番出口)の他に小川町駅(B5番出口)徒歩2分、淡路町駅(A7番出口)徒歩3分で利用も可能です。

