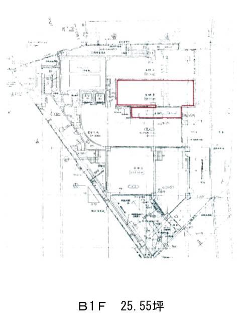
1階 1Bは現在募集がありません
第2龍名館ビル 1階 1B
物件概要
第2龍名館ビルのテナント募集中区画
現在、空室がございません。
アクセス
第2龍名館ビルの物件情報
第2龍名館ビル(千代田区神田小川町)は神保町駅(A5番出口)から徒歩5分の賃貸オフィスです。明大通りに面していて、駿河台道灌道との交差点の角地に立地しているビルです。隣には明治大学が、斜め向かいには日本大学がある学生の集まる活気あふれるエリアです。白タイル貼りで側面は段状になっているのが特徴的な重厚感のある外観の物件です。1階には飲食店が入っているので来客者にも分かりやすいでしょう。エレベータは2基設置されていますので、上下階の移動もスムーズです。周辺にはコンビニを始め、飲食店が多数あるのでランチには大変便利な場所です。第2龍名館ビルは神保町駅(A5番出口)の他に新御茶ノ水駅(B3a番出口)徒歩5分、御茶ノ水駅(御茶ノ水橋口)徒歩5分で利用も可能です。

