2階は現在募集がありません
1フロア募集区画あり

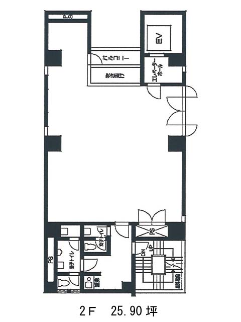
大野ビル 2階

前の写真 次の写真

物件概要

物件番号

401-00001-20

物件名

大野ビル

所在地

面積

25.90坪

賃料(共益費含)


入居日

募集終了

保証金

礼金

更新料

償却費

竣工

1986年6月

構造

SRC

規模

地上10階

トイレ

男女別

空調

エレベーター

セキュリティ

駐車場

耐震

新耐震基準

基準階天井高

空室延床面積

27.60坪

最寄駅

情報更新日

2025/12/17

大野ビルのテナント募集中区画

階数 面積 賃料(共益費含む) 保証金 入居可能日 検討リスト 詳細
3 27.60坪 455,400円/月(16,500円/坪) 264万円
…新着物件

アクセス

大野ビルの物件情報

大野ビル(千代田区神田松永町)は秋葉原駅(2番出口)から徒歩3分の賃貸オフィスです。
大野ビルは秋葉原駅(2番出口)の他に岩本町駅(A3番出口)徒歩7分、末広町駅(1番出口)徒歩7分で利用も可能です。

近隣のエリア・駅から探す