5階は現在募集がありません
ビオレ秋葉原 5階
物件概要
ビオレ秋葉原のテナント募集中区画
現在、空室がございません。
アクセス
ビオレ秋葉原の物件情報
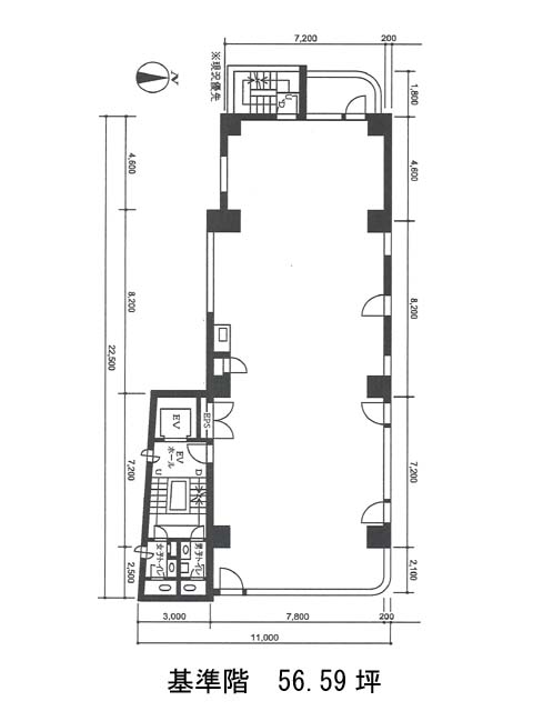
ビオレ秋葉原(千代田区神田松永町)は秋葉原駅(2番出口)から徒歩4分の賃貸オフィスです。地上10階建の当ビルは昭和通りに面した角地に立地し、1階にドトールのテナントも入っていることから視認性に優れています。外観はガラス面が多く取られたデザイン。基準階は56.59坪で給湯は室内に確保されています。男女別トイレは室外(階段踊り場)に設置されていますのでプライベート空間を保てます。OAフロア有、機械警備付で使い勝手のよい設備環境。オフィスは土日祝も開放しており、時間を気にせずご使用頂けます。
秋葉原エリアということで、ビル周辺は飲食店や販売店が豊富であることはもちろん、銀行・外貨両替所・郵便局・書店なども点在しており、利便性は申し分ありません。ビオレ秋葉原は秋葉原駅(2番出口)の他に末広町駅(1番出口)徒歩7分、岩本町駅(A3番出口)徒歩7分で利用も可能です。

