4階は現在募集がありません
岩波書店アネックスビル 4階
物件概要
岩波書店アネックスビルのテナント募集中区画
現在、空室がございません。
アクセス
岩波書店アネックスビルの物件情報
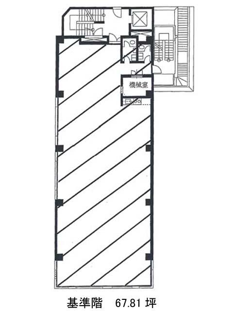
岩波書店アネックスビル(千代田区神田神保町)は神保町駅(A6番出口)から徒歩2分の賃貸オフィスです。靖国通りに面していて角地に立地しているビルです。外観はベージュのタイル張りでシンプルなビルです。1階にはブックカフェがあるので視認性は高いでしょう。室内には男女別のトイレと給湯スペースがあります。間取りは長方形で床はフリーアクセスのためレイアウトはしやすいでしょう。周辺は神保町らしく古書店が立ち並んでいますが、コンビニ、飲食店も多数あり、目の前の靖国通りを渡ると郵便局、銀行もあるという大変利便性の高い環境です。岩波書店アネックスビルは神保町駅(A6番出口)の他に九段下駅(6番出口)徒歩7分、竹橋駅(1b番出口)徒歩9分で利用も可能です。

