2階 202は現在募集がありません
木下第2ビル 2階 202


物件概要
木下第2ビルのテナント募集中区画
現在、空室がございません。
アクセス
木下第2ビルの物件情報
木下第二ビル(千代田区神田神保町)は神保町駅(A6番出口)から徒歩3分の賃貸オフィスです。
神保町駅から徒歩3分の好立地に佇む、地上4階建てのビルです。神保町駅は3路線利用可能で交通アクセスが便利です。その他、近隣の新御茶ノ水や九段下、水道橋駅なども徒歩圏内のため、営業などで都内を回る際にも非常に動きやすい環境といえるでしょう。
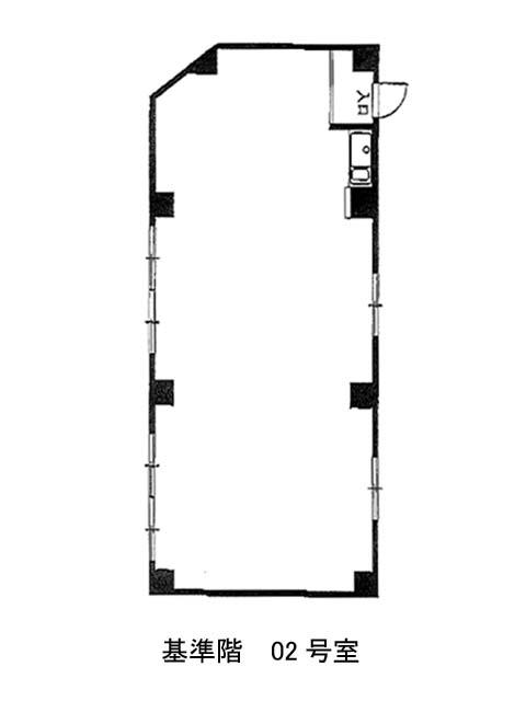
フリーアクセス、機械警備を備えたビルです。レトロで味わいのある雰囲気の外観となっており、築年数はそれなりですが、共用部がしっかりと管理されているので内装は清潔感があります。長方形で室内レイアウトのしやすい間取りです。
木下第二ビルは神保町駅(A6番出口)の他に新御茶ノ水駅(B5番出口)徒歩8分、小川町駅(B5番出口)徒歩8分で利用も可能です。