3階は現在募集がありません
東久ビル 3階
物件概要
東久ビルのテナント募集中区画
現在、空室がございません。
アクセス
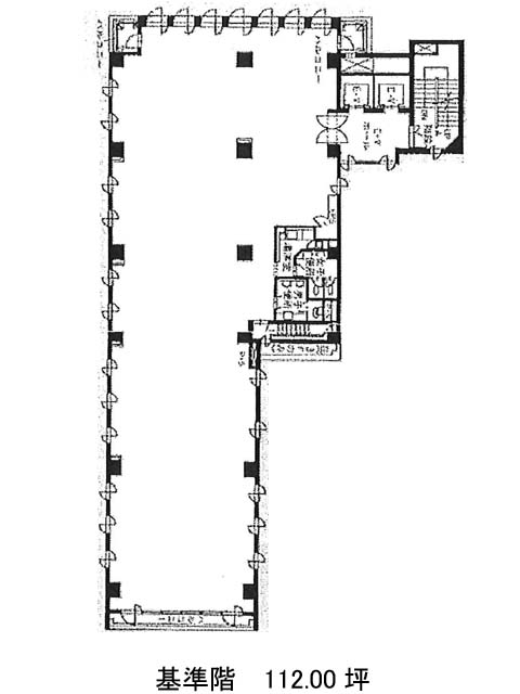
東久ビルの物件情報
東久ビル(千代田区神田神保町)は神保町駅(A2番出口)から徒歩4分の賃貸オフィスです。
最寄駅から徒歩4分という好立地な物件。出入口、エントランス、トイレなど細やかにメンテナンスがされており、綺麗に保たれております。1986年竣工ですが、新耐震基準を満たしているため、安心してご入居いただけます。エレベーターが2基備わっているので、昇り降りの待ち時間については心配なさそうです。室内は見通しの良いレイアウトを組みやすい形のフロア、男女別のトイレ設置となっております。付近には飲食店やコンビニが多く、働きやすい環境が整っております。
東久ビルは神保町駅(A2番出口)の他に水道橋駅(東口)徒歩7分、九段下駅(5番出口)徒歩8分で利用も可能です。


