神保町NSEビルのテナント募集中区画
| 階数 | 面積 | 賃料(共益費含む) | 保証金 | 入居可能日 | 検討リスト | 詳細 |
|---|---|---|---|---|---|---|
| 6 | 58.49坪 | 1,029,424円/月(17,600円/坪) | 935万円 | 即 |
…新着物件
アクセス
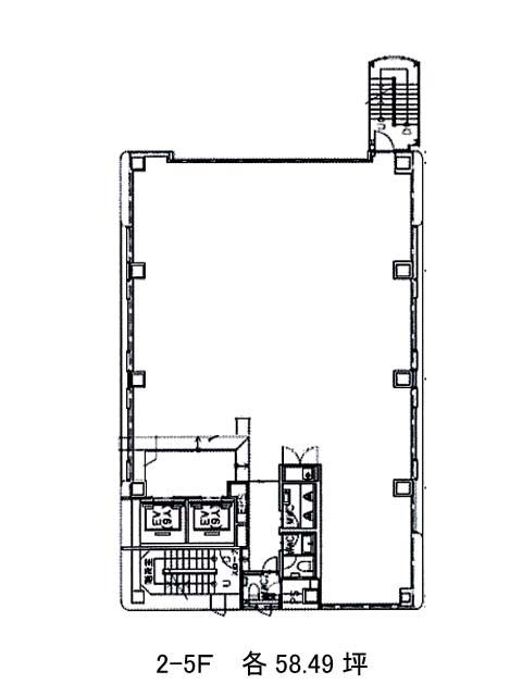
神保町NSEビルの物件情報
神保町NSEビル(千代田区神田神保町)は神保町駅(A7番出口)から徒歩3分の賃貸オフィスです。靖国通りから少し入ったところの角地に立地しています。ビル入り口は靖国通りに面しています。竣工は1987年ですが2020年2月に共用部をリニューアルしているので綺麗です。基準階は60坪弱のオフィス物件です。室内には男女別のトイレと給湯室があるので快適に過ごせます。エレベーターは2基あるので朝の忙しい時間帯でも上下移動がスムーズに出来ます。また、機械警備を備え、耐震は新耐震基準を満たしているため、安心・安全です。駅近なこともあり、周辺にはカフェ、飲食店が豊富にあるため、ランチにもちょっとした打ち合わせにも大変便利です。神保町NSEビルは神保町駅(A7番出口)の他に新御茶ノ水駅(B5番出口)徒歩8分、小川町駅(B5番出口)徒歩8分で利用も可能です。

