5階は現在募集がありません
1フロア募集区画あり

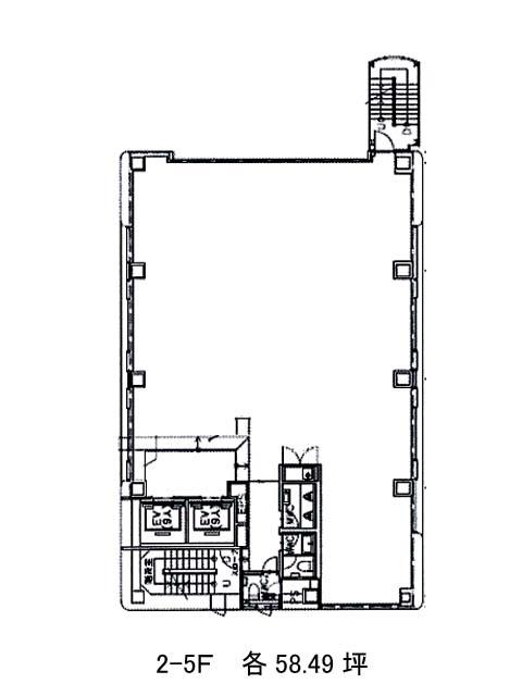
神保町NSEビル 5階

前の写真 次の写真

物件概要

物件番号

402-00401-5

物件名

神保町NSEビル

所在地

面積

58.49坪

賃料(共益費含)


入居日

募集終了

保証金

礼金

更新料

償却費

竣工

1987年9月

構造

SRC

規模

地上8階/地下1階

トイレ

男女別

空調

個別空調

エレベーター

セキュリティ

駐車場

耐震

新耐震基準

基準階天井高

2520mm

空室延床面積

58.49坪

最寄駅

情報更新日

2026/01/06

神保町NSEビルのテナント募集中区画

階数 面積 賃料(共益費含む) 保証金 入居可能日 検討リスト 詳細
6 58.49坪 1,029,424円/月(17,600円/坪) 935万円
…新着物件

アクセス

神保町NSEビルの物件情報

神保町NSEビル(千代田区神田神保町)は神保町駅(A7番出口)から徒歩3分の賃貸オフィスです。
靖国通りから少し入ったところの角地に立地しています。ビル入り口は靖国通りに面しています。竣工は1987年ですが2020年2月に共用部をリニューアルしているので綺麗です。基準階は60坪弱のオフィス物件です。室内には男女別のトイレと給湯室があるので快適に過ごせます。エレベーターは2基あるので朝の忙しい時間帯でも上下移動がスムーズに出来ます。また、機械警備を備え、耐震は新耐震基準を満たしているため、安心・安全です。駅近なこともあり、周辺にはカフェ、飲食店が豊富にあるため、ランチにもちょっとした打ち合わせにも大変便利です。
神保町NSEビルは神保町駅(A7番出口)の他に新御茶ノ水駅(B5番出口)徒歩8分、小川町駅(B5番出口)徒歩8分で利用も可能です。

近隣のエリア・駅から探す