4階は現在募集がありません
PMO神保町 4階
物件概要
PMO神保町のテナント募集中区画
現在、空室がございません。
アクセス
PMO神保町の物件情報
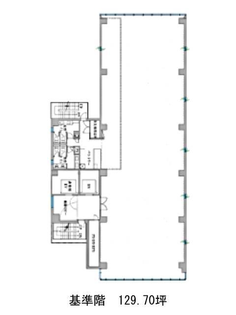
PMO神保町(千代田区神田神保町)は神保町駅(A2番出口)から徒歩3分の賃貸オフィスです。複数の路線から徒歩圏内に位置するアクセス良好なビルです。新耐震基準を満たしており、安心してご入居いただけます。フロアの形が綺麗な長方形になっていて、なおかつ室内に余計な支柱が存在しません。建物の造りに邪魔されず、自由なレイアウトを設計することができます。エレベータが備わっており、男女別のトイレ設置となっております。付近には飲食店やコンビニが多く、便利なエリアとなっております。千代田区の抜群の立地となっているこのビル、是非一度ご内見ください。PMO神保町は神保町駅(A2番出口)の他に九段下駅(6番出口)徒歩8分、水道橋駅(東口)徒歩8分で利用も可能です。

