6階は現在募集がありません
1フロア募集区画あり

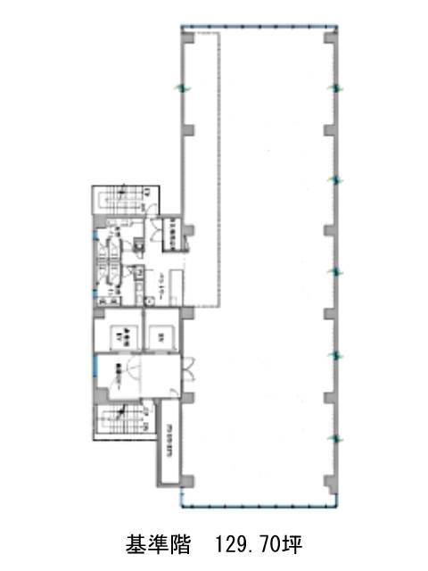
PMO神保町 6階

前の写真 次の写真

物件概要

物件番号

402-00411-5

物件名

PMO神保町

所在地

面積

129.70坪

賃料(共益費含)


入居日

募集終了

保証金

礼金

更新料

償却費

竣工

2022年5月

構造

S造

規模

地上11階

トイレ

男女別

空調

個別空調

エレベーター

セキュリティ

駐車場

耐震

新耐震基準

基準階天井高

2800mm

空室延床面積

129.70坪

最寄駅

情報更新日

2025/11/07

PMO神保町のテナント募集中区画

階数 面積 賃料(共益費含む) 保証金 入居可能日 検討リスト 詳細
2 129.70坪 応相談(応相談) 応相談 相談
…新着物件

アクセス

PMO神保町の物件情報

PMO神保町(千代田区神田神保町)は神保町駅(A2番出口)から徒歩3分の賃貸オフィスです。
複数の路線から徒歩圏内に位置するアクセス良好なビルです。新耐震基準を満たしており、安心してご入居いただけます。フロアの形が綺麗な長方形になっていて、なおかつ室内に余計な支柱が存在しません。建物の造りに邪魔されず、自由なレイアウトを設計することができます。エレベータが備わっており、男女別のトイレ設置となっております。付近には飲食店やコンビニが多く、便利なエリアとなっております。千代田区の抜群の立地となっているこのビル、是非一度ご内見ください。
PMO神保町は神保町駅(A2番出口)の他に九段下駅(6番出口)徒歩8分、水道橋駅(東口)徒歩8分で利用も可能です。

近隣のエリア・駅から探す