3階は現在募集がありません

岩波神保町ビル 3階

前の写真 次の写真

物件概要

物件番号

402-00091-20

物件名

岩波神保町ビル

所在地

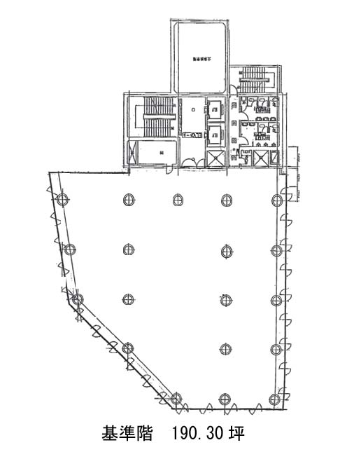
面積

190.30坪

賃料(共益費含)


入居日

募集終了

保証金

礼金

更新料

償却費

竣工

1967年8月

構造

SRC

規模

地上11階/地下2階

トイレ

男女別

空調

セントラル

エレベーター

セキュリティ

駐車場

耐震

旧耐震基準

基準階天井高

2600mm

空室延床面積

最寄駅

情報更新日

2016/12/05

岩波神保町ビルのテナント募集中区画

現在、空室がございません。

アクセス

岩波神保町ビルの物件情報

岩波神保町ビル(千代田区神田神保町)は神保町駅(A6番出口)から徒歩1分の賃貸オフィスです。
岩波神保町ビルは神保町駅(A6番出口)の他に九段下駅(6番出口)徒歩8分、新御茶ノ水駅(B5番出口)徒歩10分で利用も可能です。

近隣のエリア・駅から探す