二引ビルのテナント募集中区画
| 階数 | 面積 | 賃料(共益費含む) | 保証金 | 入居可能日 | 検討リスト | 詳細 |
|---|---|---|---|---|---|---|
| 3 | 56.07坪 | 応相談(応相談) | 応相談 | 2026年3月上旬 |
…新着物件
アクセス
二引ビルの物件情報
二引ビル(千代田区神田淡路町)は淡路町駅(A5番出口)から徒歩1分の賃貸オフィスです。大通りに面した角地に位置し、視認性の高さが魅力のオフィスビルです。外観はブラウンのタイル張りで、落ち着きと存在感を兼ね備えた印象を与えます。
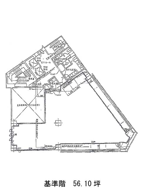
基準階は約56坪。三角形に近い個性的な間取りが特徴。一般的な長方形とは一味違う空間設計は、発想を柔軟に広げるレイアウトにも向いています。床はOAフロア仕様、水回りはすべて貸室外に配置されており、執務空間をすっきりと保つことが可能です。また、機械警備や駐車場も備わっており、安心かつ利便性の高いオフィス環境が整っています。
2駅2路線が徒歩1分圏内という、希少な交通アクセスも大きなポイントです。二引ビルは淡路町駅(A5番出口)の他に小川町駅(A5番出口)徒歩1分、新御茶ノ水駅(B3a番出口)徒歩4分で利用も可能です。

