2階は現在募集がありません
高岡ビル 2階
物件概要
高岡ビルのテナント募集中区画
現在、空室がございません。
アクセス
高岡ビルの物件情報
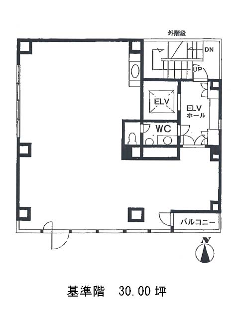
高岡ビル(千代田区西神田)は神保町駅(A2番出口)から徒歩4分の賃貸オフィスです。グレーの石造りの外観が落ち着いた印象の当ビルは地上8階/地下1階建。SRC造でしっかりとした佇まいのオフィスビルです。基準階は30坪でトイレは室外に設置されています。給湯設備は室内にあります。ミニバルコニー付き。機械警備導入済みですので、セキュリティ面もご安心頂けるかと思います。
高岡ビルは神保町駅の他に九段下駅、水道橋駅が徒歩圏内です。飲食店は神保町駅周辺・もしくは白山通り周辺に充実しています。ビルの斜向いにコンビニがあるので何かと便利でしょう。高岡ビルは神保町駅(A2番出口)の他に九段下駅(5番出口)徒歩7分、水道橋駅(西口)徒歩8分で利用も可能です。

