地下1階は現在募集がありません
2フロア募集区画あり

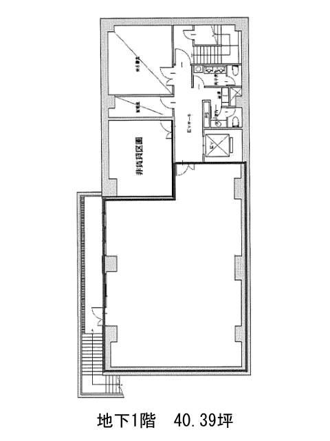
SHONENGAHOー1 地下1階

前の写真 次の写真

物件概要

物件番号

418-00088-12

物件名

SHONENGAHOー1

所在地

面積

40.39坪

賃料(共益費含)


入居日

募集終了

保証金

礼金

更新料

償却費

竣工

1993年8月

構造

SRC

規模

地上6階/地下1階

トイレ

男女別

空調

個別空調

エレベーター

セキュリティ

駐車場

耐震

新耐震基準

基準階天井高

2500mm

空室延床面積

126.37坪

最寄駅

情報更新日

2025/12/12

SHONENGAHOー1のテナント募集中区画

階数 面積 賃料(共益費含む) 保証金 入居可能日 検討リスト 詳細
3 64.33坪 1,401,107円/月(21,780円/坪) 764万円
4 62.04坪 1,351,231円/月(21,780円/坪) 737万円
…新着物件

アクセス

SHONENGAHOー1の物件情報

SHONENGAHOー1(千代田区西神田)は水道橋駅(東口)から徒歩5分の賃貸オフィスです。
外観はグレー系石張りで、シンプルながら重厚感のある印象。共用部のエレベーターホールも同系色で統一されており、白を基調とした明るく清潔感のある内装が来訪者にも好印象を与えます。
基準階は約64坪。柱の配置も素直で、柔軟なレイアウトが可能です。水回りは貸室外に設置されているため、執務スペースを広く使えるのもメリットのひとつ。
周辺にはコンビニや飲食店が点在しており、日常のランチや急な買い出しにも困りません。比較的静かなエリアでありながら、利便性はしっかりと確保されています。
手堅く使いやすい中規模オフィスをお探しの方におすすめの一棟です。
SHONENGAHOー1は水道橋駅(東口)の他に神保町駅(A4番出口)徒歩6分、九段下駅(7番出口)徒歩9分で利用も可能です。

近隣のエリア・駅から探す