SHONENGAHOー1 3階
物件概要
物件番号
418-00088-5物件名
SHONENGAHOー1所在地
- 東京都千代田区西神田2-8-5
- アクセスマップ
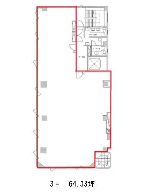
面積
64.33坪賃料(共益費含)
月額1,401,107円(21,780円/坪)
入居日
即保証金
7,642,404円礼金
なし更新料
新1ケ月償却費
2ケ月竣工
1993年8月構造
SRC規模
地上6階/地下1階トイレ
男女別空調
個別空調エレベーター
有セキュリティ
有駐車場
無耐震
新耐震基準基準階天井高
2500mm空室延床面積
126.37坪情報更新日
2025/12/12SHONENGAHOー1のテナント募集中区画
| 階数 | 面積 | 賃料(共益費含む) | 保証金 | 入居可能日 | 検討リスト | 詳細 |
|---|---|---|---|---|---|---|
| 3 | 64.33坪 | 1,401,107円/月(21,780円/坪) | 764万円 | 即 | ||
| 4 | 62.04坪 | 1,351,231円/月(21,780円/坪) | 737万円 | 即 |
…新着物件
アクセス
SHONENGAHOー1の物件情報
SHONENGAHOー1(千代田区西神田)は水道橋駅(東口)から徒歩5分の賃貸オフィスです。外観はグレー系石張りで、シンプルながら重厚感のある印象。共用部のエレベーターホールも同系色で統一されており、白を基調とした明るく清潔感のある内装が来訪者にも好印象を与えます。
基準階は約64坪。柱の配置も素直で、柔軟なレイアウトが可能です。水回りは貸室外に設置されているため、執務スペースを広く使えるのもメリットのひとつ。
周辺にはコンビニや飲食店が点在しており、日常のランチや急な買い出しにも困りません。比較的静かなエリアでありながら、利便性はしっかりと確保されています。
手堅く使いやすい中規模オフィスをお探しの方におすすめの一棟です。SHONENGAHOー1は水道橋駅(東口)の他に神保町駅(A4番出口)徒歩6分、九段下駅(7番出口)徒歩9分で利用も可能です。

