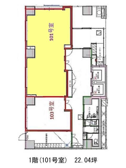
1階 101は現在募集がありません
東京中央ビル 1階 101
物件概要
東京中央ビルのテナント募集中区画
現在、空室がございません。
アクセス
東京中央ビルの物件情報
東京中央ビル(千代田区飯田橋)は飯田橋駅(A5番出口)から徒歩2分の賃貸オフィスです。東京中央ビルは飯田橋駅(A5番出口)の他に九段下駅(7番出口)徒歩9分、水道橋駅(西口)徒歩9分で利用も可能です。

