7階は現在募集がありません
オンダ浅草橋ビル 7階
物件概要
オンダ浅草橋ビルのテナント募集中区画
現在、空室がございません。
アクセス
オンダ浅草橋ビルの物件情報
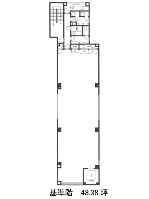
オンダ浅草橋ビル(台東区浅草橋)は浅草橋駅(東口)から徒歩1分の賃貸オフィスです。1991年竣工、地上9階建ての鉄骨造です。駅の目の前という大変恵まれた立地にあるビルになります。外観がスタイリッシュで、落ち着いた色合いとなっております。室内は、基準階が約49坪の長方形で使いやすくレイアウトがしやすい空間となっております。募集階により飲食店店舗の募集もございます。駅近の為、集客がしやすいのではないでしょうか。トイレは男女別トイレです。エレベーターは1基あります。オンダ浅草橋ビルは浅草橋駅(東口)の他に馬喰町駅(6番出口)徒歩6分、蔵前駅(A1番出口)徒歩9分で利用も可能です。

