3階は現在募集がありません
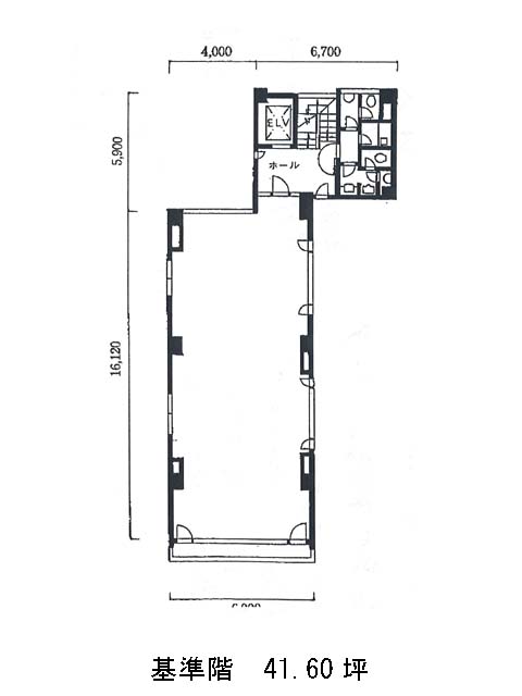
一誠ビル 3階
物件概要
一誠ビルのテナント募集中区画
現在、空室がございません。
アクセス
一誠ビルの物件情報
一誠ビル(台東区浅草橋)は浅草橋駅(東口)から徒歩2分の賃貸オフィスです。一誠ビルは浅草橋駅(東口)の他に馬喰町駅(6番出口)徒歩6分、東日本橋駅(出口)徒歩9分で利用も可能です。

