5階は現在募集がありません
マルケービル 5階
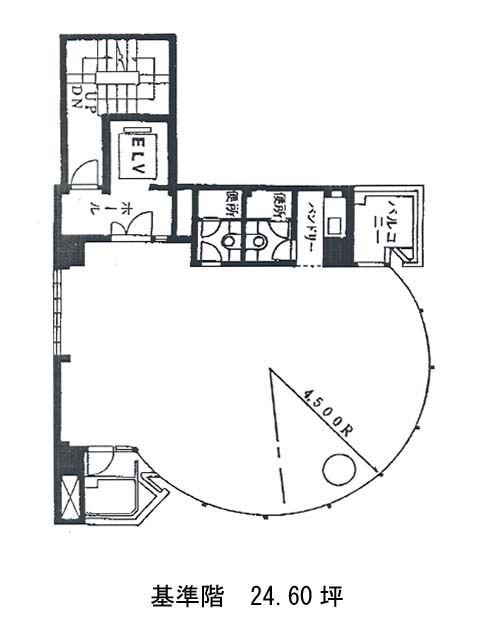
物件概要
マルケービルのテナント募集中区画
現在、空室がございません。
アクセス
マルケービルの物件情報
マルケービル(台東区浅草橋)は浅草橋駅(A6番出口)から徒歩3分の賃貸オフィスです。マルケービルは浅草橋駅(A6番出口)の他に蔵前駅(A1番出口)徒歩5分、馬喰町駅(6番出口)徒歩9分で利用も可能です。

