6階は現在募集がありません
東京文具工業健保会館・千葉ビル 6階
物件概要
東京文具工業健保会館・千葉ビルのテナント募集中区画
現在、空室がございません。
アクセス
東京文具工業健保会館・千葉ビルの物件情報
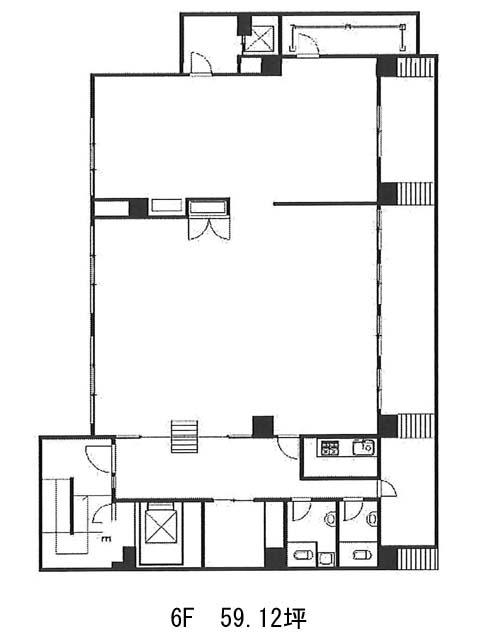
東京文具工業健保会館・千葉ビル(台東区浅草橋)は浅草橋駅(西口)から徒歩2分の賃貸オフィスです。1982年竣工、地上10階建ての鉄骨鉄筋コンクリート造です。デザイン性があり、レトロな雰囲気の視認性が高いビルです。竣工から年数が経っていますが、しっかりと管理されていますので、ホールや共用部は清潔感があります。階数により違いますが、約50から60坪の整形オフィスで、使用しやすい広さとなっております。設備面は、男女別トイレ、個別空調がございます。床はOAフロアです。エレベーターが1基あります。東京文具工業健保会館・千葉ビルは浅草橋駅(西口)の他に馬喰町駅(6番出口)徒歩6分、東日本橋駅(出口)徒歩10分で利用も可能です。

