4階は現在募集がありません
反町商事ビル 4階
物件概要
反町商事ビルのテナント募集中区画
現在、空室がございません。
アクセス
反町商事ビルの物件情報
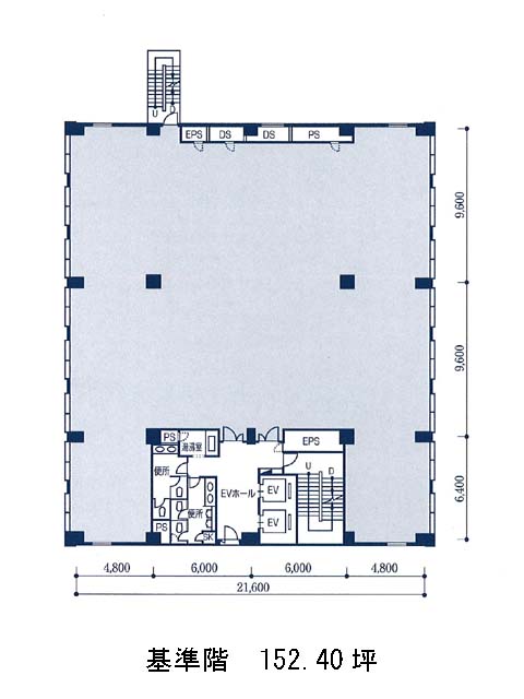
反町商事ビル(台東区台東)は秋葉原駅(1番出口)から徒歩8分の賃貸オフィスです。1994年竣工、地上8階地下1階建てSRC造のビルです。ミラーガラスがならび、すっきりとしたデザインをしています。貸室は整形オフィスで、フロアの一箇所に共用部が集まり動線に配慮されています。EV・駐車場・個別空調・貸室外の男女別トイレといった設備仕様がそろいます。パソコンの配置がしやすいOAフロアを導入。セキュリティとして機械警備が導入されています。周辺はオフィスビルや低層階の住宅が混在するエリアです。反町商事ビルは秋葉原駅(1番出口)の他に浅草橋駅(西口)徒歩10分、新御徒町駅(A2番出口)徒歩11分で利用も可能です。

