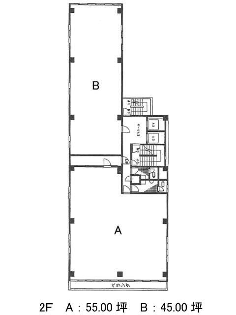
2階 2Aは現在募集がありません
第2東商センター1号館 2階 2A
物件概要
第2東商センター1号館のテナント募集中区画
現在、空室がございません。
アクセス
第2東商センター1号館の物件情報
第2東商センター1号館(台東区柳橋)は浅草橋駅(A6番出口)から徒歩5分の賃貸オフィスです。第2東商センター1号館は浅草橋駅(A6番出口)の他に蔵前駅(A1番出口)徒歩8分、馬喰町駅(6番出口)徒歩11分で利用も可能です。

