サンライズ橘のテナント募集中区画
| 階数 | 面積 | 賃料(共益費含む) | 保証金 | 入居可能日 | 検討リスト | 詳細 |
|---|---|---|---|---|---|---|
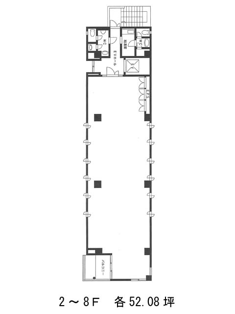
| 4 | 52.08坪 | 応相談(応相談) | 応相談 | 2026年1月下旬 |
…新着物件
アクセス
サンライズ橘の物件情報
サンライズ橘(中央区東日本橋)は東日本橋駅(B3番出口)から徒歩2分の賃貸オフィスです。清杉通りを一本西へ入ったところにある、8階建てのビルです。ビル正面左側のバルコニー部分に、円柱が通っているようなデザインが特徴的な外観です。基準階は約52坪の、奥行きのある長方形の間取りです。床がフリーアクセスになっているので、レイアウトしやすいと思います。給湯室と男女別トイレが共用部に設置されています。貸室の出入り口には先進の静脈認証システムを導入しており、セキュリティは万全です。2008年に、共用部の大規模なリニューアルを実施済みです。給湯室やトイレは白を基調とした清潔感のある空間のため、気持ちよく過ごせる環境が整っています。サンライズ橘は東日本橋駅(B3番出口)の他に馬喰横山駅(A4番出口)徒歩2分、馬喰町駅(3番出口)徒歩3分で利用も可能です。

