8階は現在募集がありません
1フロア募集区画あり

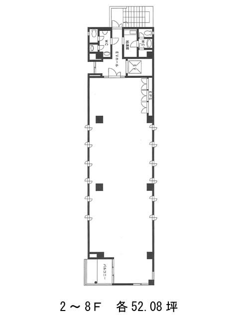
サンライズ橘 8階

前の写真 次の写真

物件概要

物件番号

642-00114-80

物件名

サンライズ橘

所在地

面積

52.08坪

賃料(共益費含)


入居日

募集終了

保証金

礼金

更新料

償却費

竣工

1992年8月

構造

S造

規模

地上8階

トイレ

男女別

空調

個別空調

エレベーター

セキュリティ

駐車場

耐震

新耐震基準

基準階天井高

空室延床面積

52.08坪

最寄駅

情報更新日

2025/11/12

サンライズ橘のテナント募集中区画

階数 面積 賃料(共益費含む) 保証金 入居可能日 検討リスト 詳細
4 52.08坪 応相談(応相談) 応相談 2026年1月下旬
…新着物件

アクセス

サンライズ橘の物件情報

サンライズ橘(中央区東日本橋)は東日本橋駅(B3番出口)から徒歩2分の賃貸オフィスです。
清杉通りを一本西へ入ったところにある、8階建てのビルです。ビル正面左側のバルコニー部分に、円柱が通っているようなデザインが特徴的な外観です。基準階は約52坪の、奥行きのある長方形の間取りです。床がフリーアクセスになっているので、レイアウトしやすいと思います。給湯室と男女別トイレが共用部に設置されています。貸室の出入り口には先進の静脈認証システムを導入しており、セキュリティは万全です。2008年に、共用部の大規模なリニューアルを実施済みです。給湯室やトイレは白を基調とした清潔感のある空間のため、気持ちよく過ごせる環境が整っています。
サンライズ橘は東日本橋駅(B3番出口)の他に馬喰横山駅(A4番出口)徒歩2分、馬喰町駅(3番出口)徒歩3分で利用も可能です。

近隣のエリア・駅から探す