8階は現在募集がありません
第3正明ビル 8階
物件概要
第3正明ビルのテナント募集中区画
現在、空室がございません。
アクセス
第3正明ビルの物件情報
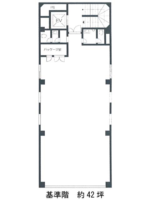
第3正明ビル(中央区日本橋)は日本橋駅(D2番出口)から徒歩3分の賃貸オフィスです。複数路線の利用が可能なアクセス良好な立地といえるでしょう。昭和通り沿いに立地しているため日当たり良好、外観は全体的にベージュを基調とした落ち着いた雰囲気です。基準階面積は約40坪、OAフロアが備えられており、長方形の形をしているので用途に合わせた効率的なレイアウトが組めるでしょう。近くにパーキングがあるので、社用車での利用も可能です。また周辺には、コンビニや飲食店、郵便局などが複数あり、とても利便性が高いです。第3正明ビルは日本橋駅(D2番出口)の他に茅場町駅(11番出口)徒歩5分、三越前駅(B6番出口)徒歩6分で利用も可能です。

