2階は現在募集がありません
ちばやビル 2階
物件概要
ちばやビルのテナント募集中区画
現在、空室がございません。
アクセス
ちばやビルの物件情報
ちばやビル(中央区日本橋室町)は三越前駅(B6番出口)から徒歩2分の賃貸オフィスです。首都高速都心環状線が裏手を走る地上9階建てのオフィスビルです。
黒色で統一された外観は厳格な印象を受けます。
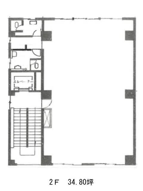
男女別トイレと給湯室は執務スペースとは区切られているため、落ち着いた空間が確保されています。
また、室内は無柱空間で長方形に近いため、レイアウトの自由度は高そうです。
日本橋や三越本店を始め、老舗の飲食店などが近くに見受けられ、周辺は格式高い雰囲気があります。ちばやビルは三越前駅(B6番出口)の他に日本橋駅(C1番出口)徒歩5分、新日本橋駅(5番出口)徒歩7分で利用も可能です。

