4階は現在募集がありません
小伝馬ファインビル 4階
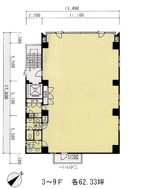
物件概要
小伝馬ファインビルのテナント募集中区画
現在、空室がございません。
アクセス
小伝馬ファインビルの物件情報
小伝馬ファインビル(中央区日本橋小伝馬町)は馬喰町駅(2番出口)から徒歩2分の賃貸オフィスです。小伝馬ファインビルは馬喰町駅(2番出口)の他に小伝馬町駅(1番出口)徒歩3分、馬喰横山駅(A1番出口)徒歩4分で利用も可能です。

