3階は現在募集がありません
W2 KODENMACHO 3階
物件概要
W2 KODENMACHOのテナント募集中区画
現在、空室がございません。
アクセス
W2 KODENMACHOの物件情報
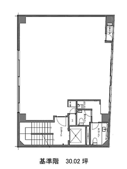
W2 KODENMACHO(中央区日本橋小伝馬町)は馬喰町駅(2番出口)から徒歩2分の賃貸オフィスです。江戸通りを西へ入ったところにある、5階建てのビルです。交通量の少ない通りに面していて、落ち着いた環境です。基準階は30.02坪の正方形に近い無柱空間で、レイアウトしやすくなっています。トイレは室内に設置されています。1984年竣工ですが、2008年12月にエントランスと内装の改修工事を実施しています。W2 KODENMACHOは馬喰町駅(2番出口)の他に小伝馬町駅(出口1)徒歩3分、馬喰横山駅(A1番出口)徒歩4分で利用も可能です。

