7階は現在募集がありません
日本橋府川ビル 7階
物件概要
日本橋府川ビルのテナント募集中区画
現在、空室がございません。
アクセス
日本橋府川ビルの物件情報
日本橋府川ビル(中央区日本橋小伝馬町)は小伝馬町駅(2番出口)から徒歩2分の賃貸オフィスです。駅至近、大通り沿いに面した視認性に優れた物件。1階にはコンビニが入居しており、来訪者への案内やちょっとした買い物にも便利です。外観はブルーグレーのタイル張りで落ち着いた印象。エレベーターホールはグレーの石材を用いた内装で、シンプルながらも整った雰囲気です。
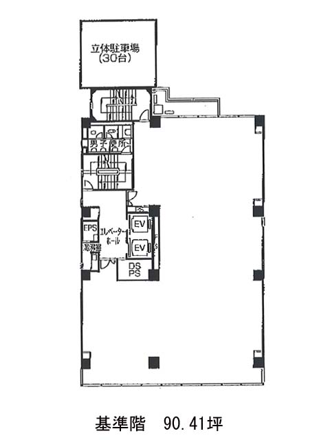
基準階は約90坪。室内に柱はありますが、使いやすいシンプルな間取りとOAフロアによりレイアウトの自由度を確保しています。EV2基・個別空調・機械警備に加え、駐車場も備わっており、日常使いの快適性も十分。
通勤しやすい立地と、堅実な設備バランスが、企業の安心感につながる一棟です。日本橋府川ビルは小伝馬町駅(2番出口)の他に馬喰町駅(2番出口)徒歩4分、馬喰横山駅(A1番出口)徒歩6分で利用も可能です。

