4階は現在募集がありません
1フロア募集区画あり

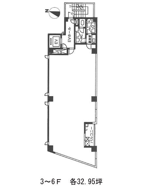
日本橋末広ビル 4階

前の写真 次の写真

物件概要

物件番号

650-00055-30

物件名

日本橋末広ビル

所在地

面積

32.95坪

賃料(共益費含)


入居日

募集終了

保証金

礼金

更新料

償却費

竣工

1987年1月

構造

SRC

規模

地上7階/地下1階

トイレ

男女別

空調

個別空調

エレベーター

セキュリティ

駐車場

耐震

新耐震基準

基準階天井高

空室延床面積

32.95坪

最寄駅

情報更新日

2025/10/30

日本橋末広ビルのテナント募集中区画

階数 面積 賃料(共益費含む) 保証金 入居可能日 検討リスト 詳細
2 32.95坪 560,001円/月(16,996円/坪) 305万円
…新着物件

アクセス

日本橋末広ビルの物件情報

日本橋末広ビル(中央区日本橋小伝馬町)は小伝馬町駅(3番出口)から徒歩2分の賃貸オフィスです。
日本橋末広ビルは小伝馬町駅(3番出口)の他に新日本橋駅(5番出口)徒歩4分、馬喰町駅(2番出口)徒歩7分で利用も可能です。

近隣のエリア・駅から探す