日本橋小網町THビルのテナント募集中区画
| 階数 | 面積 | 賃料(共益費含む) | 保証金 | 入居可能日 | 検討リスト | 詳細 |
|---|---|---|---|---|---|---|
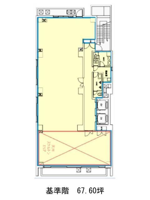
| 8 | 67.60坪 | 1,412,838円/月(20,900円/坪) | 1,297万円 | 2026年1月上旬 |
…新着物件
アクセス
日本橋小網町THビルの物件情報
日本橋小網町THビル(中央区日本橋小網町)は人形町駅(A6番出口)から徒歩5分の賃貸オフィスです。外観は全体的にベージュを基調としたタイル張りで、とてもシンプルな構造になっております。またエントランスホールやエレベーターホールもとても落ち着いた空間となっており、エレベーターは2基設置されております。周辺には、コンビニや飲食店、金融機関、郵便局などが複数あるためとても利便性が高いです。ビル内のトイレは男女別となっており、駐車場はありませんが、近くにパーキングがあるため、社用車を使う場合も便利です。基準階は約60坪あり、室内はコの字型の形をしていますが、柱は壁に沿ってあるため、比較的レイアウトは組みやすいでしょう。日本橋小網町THビルは人形町駅(A6番出口)の他に三越前駅(B6番出口)徒歩6分、水天宮前駅(8番出口)徒歩7分で利用も可能です。

