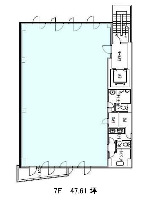
7階は現在募集がありません
東穀アネックスビル 7階
物件概要
東穀アネックスビルのテナント募集中区画
現在、空室がございません。
アクセス
東穀アネックスビルの物件情報
東穀アネックスビル(中央区日本橋小網町)は人形町駅(A6番出口)から徒歩5分の賃貸オフィスです。
東穀アネックスビルは人形町駅(A6番出口)の他に茅場町駅(9番出口)徒歩6分、水天宮前駅(6番出口)徒歩6分で利用も可能です。

