7階は現在募集がありません
日庄ビル 7階
物件概要
日庄ビルのテナント募集中区画
現在、空室がございません。
アクセス
日庄ビルの物件情報
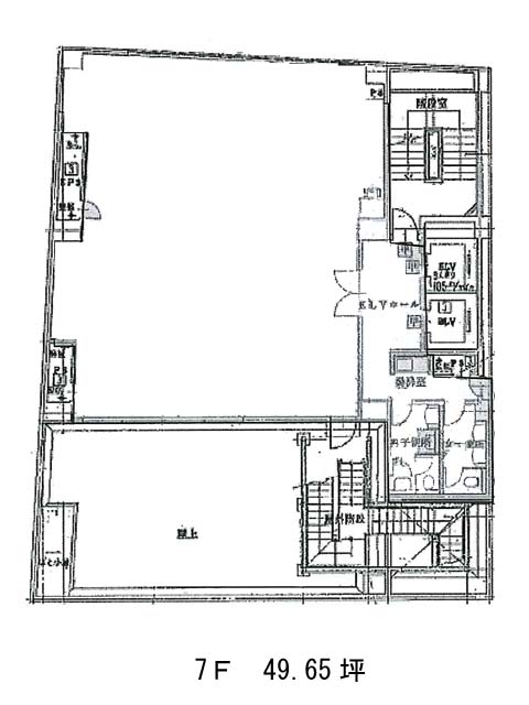
日庄ビル(中央区日本橋人形町)は人形町駅(A6番出口)から徒歩2分の賃貸オフィスです。外観は全体的にグレーのタイル張りで構成され、とても落ち着いた印象となっております。エントランスホールやエレベーターホールはカフェのような雰囲気があります。また周辺には、コンビニや飲食店、郵便局などが複数あるためとても利便性が高いです。ビル内のトイレは男女別となっており、駐車場もあるため、社用車を使う場合も便利です。基準階は約50坪あり、室内はほぼ正方形の形をしているため、比較的レイアウトは組みやすいでしょう。日庄ビルは人形町駅(A6番出口)の他に水天宮前駅(8番出口)徒歩5分、三越前駅(B6番出口)徒歩9分で利用も可能です。

