6階は現在募集がありません

住友生命日本橋大伝馬町ビル 6階

前の写真 次の写真

物件概要

物件番号

653-00011-50

物件名

住友生命日本橋大伝馬町ビル

所在地

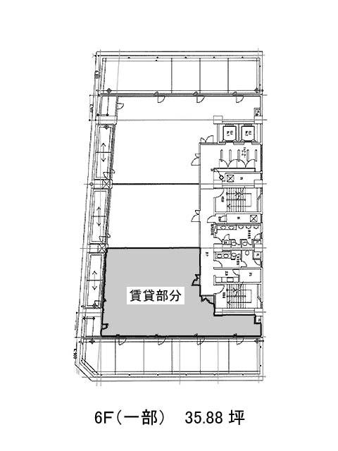
面積

35.88坪

賃料(共益費含)


入居日

募集終了

保証金

礼金

更新料

償却費

竣工

1981年6月

構造

規模

地上8階/地下1階

トイレ

男女別

空調

個別空調

エレベーター

セキュリティ

駐車場

耐震

旧耐震基準

基準階天井高

空室延床面積

最寄駅

情報更新日

2024/03/12

住友生命日本橋大伝馬町ビルのテナント募集中区画

現在、空室がございません。

アクセス

住友生命日本橋大伝馬町ビルの物件情報

住友生命日本橋大伝馬町ビル(中央区日本橋大伝馬町)は小伝馬町駅(1番出口)から徒歩3分の賃貸オフィスです。
住友生命日本橋大伝馬町ビルは小伝馬町駅(1番出口)の他に馬喰横山駅(A1番出口)徒歩4分、馬喰町駅(2番出口)徒歩4分で利用も可能です。

近隣のエリア・駅から探す