3階は現在募集がありません
Daiwa小伝馬町ビル 3階
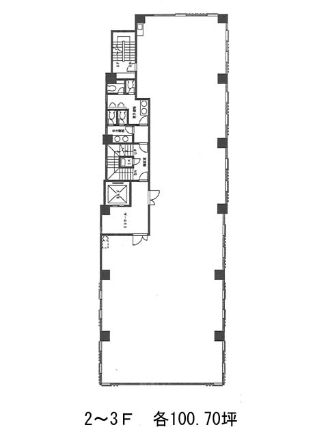
物件概要
Daiwa小伝馬町ビルのテナント募集中区画
現在、空室がございません。
アクセス
Daiwa小伝馬町ビルの物件情報
Daiwa小伝馬町ビル(中央区日本橋大伝馬町)は小伝馬町駅(3番出口)から徒歩3分の賃貸オフィスです。外観は全体的に白を基調としたタイル使いで、とてもシンプルなデザインとなっております。エントランスホールやエレベーターホールは清潔感があり、とても落ち着いた空間となっております。ビル内にはOAフロアが備えられており、トイレは男女別となっております。また敷地内にはコインパーキングがあるため、社用車を使う場合も便利です。また周辺にはコンビニや飲食店、郵便局、銀行などが複数あるためとても利便性が高いです。Daiwa小伝馬町ビルは小伝馬町駅(3番出口)の他に新日本橋駅(5番出口)徒歩4分、三越前駅(A10番出口)徒歩8分で利用も可能です。

