7階は現在募集がありません
ユニバーサルビル 7階
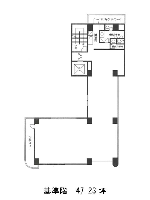
物件概要
ユニバーサルビルのテナント募集中区画
現在、空室がございません。
アクセス
ユニバーサルビルの物件情報
ユニバーサルビル(中央区日本橋箱崎町)は水天宮前駅(2番出口)から徒歩4分の賃貸オフィスです。ユニバーサルビルは水天宮前駅(2番出口)の他に茅場町駅(4B番出口)徒歩6分、人形町駅(A2番出口)徒歩10分で利用も可能です。

