6階は現在募集がありません

山三ビル 6階

前の写真 次の写真

物件概要

物件番号

661-00035-100

物件名

山三ビル

所在地

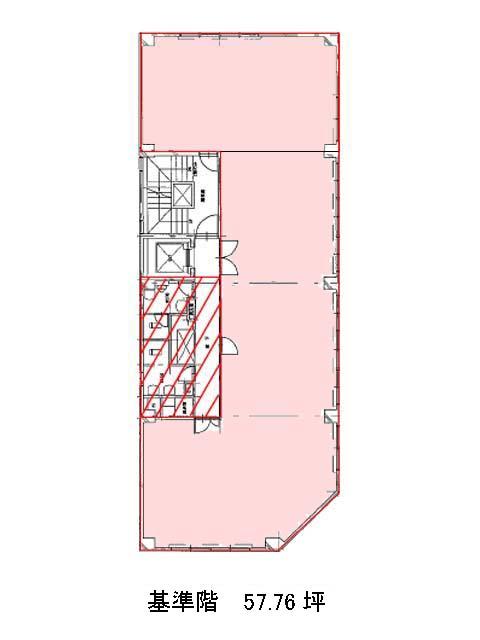
面積

57.76坪

賃料(共益費含)


入居日

募集終了

保証金

礼金

更新料

償却費

竣工

1970年9月

構造

SRC

規模

地上8階/地下1階

トイレ

男女別

空調

個別空調

エレベーター

セキュリティ

駐車場

耐震

旧耐震基準

基準階天井高

2650mm

空室延床面積

最寄駅

情報更新日

2025/07/30

山三ビルのテナント募集中区画

現在、空室がございません。

アクセス

山三ビルの物件情報

山三ビル(中央区日本橋本町)は新日本橋駅(5番出口)から徒歩4分の賃貸オフィスです。
昭和通り沿いに建つ、地上9階・地下1階建てのビルです。ベージュの外壁の、落ち着いた印象の外観です。三方向が接道しているので、ビル密集地ながら解放感のある立地です。基準階は57.76坪の長方形に近い間取りです。柱が邪魔をしない構造になっているので、レイアウトしやすいと思います。男女別トイレが共用部に設置されています。
山三ビルは新日本橋駅(5番出口)の他に三越前駅(A4番出口)徒歩5分、小伝馬町駅(3番出口)徒歩7分で利用も可能です。

近隣のエリア・駅から探す