2階は現在募集がありません
山三ビル 2階
物件概要
山三ビルのテナント募集中区画
現在、空室がございません。
アクセス
山三ビルの物件情報
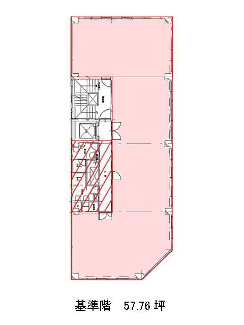
山三ビル(中央区日本橋本町)は新日本橋駅(5番出口)から徒歩4分の賃貸オフィスです。昭和通り沿いに建つ、地上9階・地下1階建てのビルです。ベージュの外壁の、落ち着いた印象の外観です。三方向が接道しているので、ビル密集地ながら解放感のある立地です。基準階は57.76坪の長方形に近い間取りです。柱が邪魔をしない構造になっているので、レイアウトしやすいと思います。男女別トイレが共用部に設置されています。山三ビルは新日本橋駅(5番出口)の他に三越前駅(A4番出口)徒歩5分、小伝馬町駅(3番出口)徒歩7分で利用も可能です。

