3階は現在募集がありません
日本橋ライフサイエンスビルディング4 3階
物件概要
物件番号
661-00039-104物件名
日本橋ライフサイエンスビルディング4所在地
- 東京都中央区日本橋本町3-8-4
- アクセスマップ
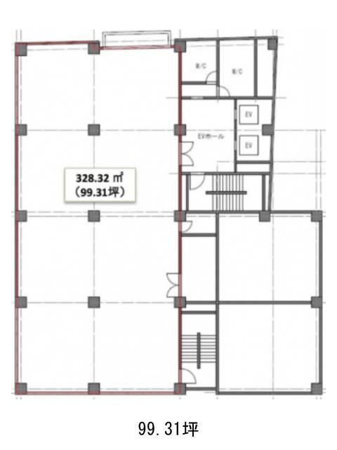
面積
99.31坪賃料(共益費含)
−入居日
募集終了保証金
−礼金
−更新料
−償却費
−竣工
1974年2月構造
SRC規模
地上9階/地下1階トイレ
男女別空調
個別空調エレベーター
有セキュリティ
有駐車場
有耐震
耐震補強済み基準階天井高
2330mm空室延床面積
−情報更新日
2024/10/22日本橋ライフサイエンスビルディング4のテナント募集中区画
現在、空室がございません。
アクセス
日本橋ライフサイエンスビルディング4の物件情報
日本橋ライフサイエンスビルディング4(中央区日本橋本町)は新日本橋駅(5番出口)から徒歩2分の賃貸オフィスです。地上9階地下1階建てSRC造、1974年竣工のビルです。外壁の中央にガラス窓が並ぶ特徴的な外観をしています。貸室はワンフロアワンテナントでの貸し出しとなり、プライバシー性が保たれるでしょう。設備仕様として、EV2基・駐車場・個別空調・非常階段2箇所・給湯室・OAフロア・貸室内の男女別トイレがそろいます。セキュリティは機械警備が導入されています。耐震・外壁・共用部のリニューアルが実施済で、築年数を感じさせない清潔感があります。日本橋ライフサイエンスビルディング4は新日本橋駅(5番出口)の他に小伝馬町駅(3番出口)徒歩3分、三越前駅(A10番出口)徒歩6分で利用も可能です。

