4階は現在募集がありません
日本橋MMIビル 4階
物件概要
日本橋MMIビルのテナント募集中区画
現在、空室がございません。
アクセス
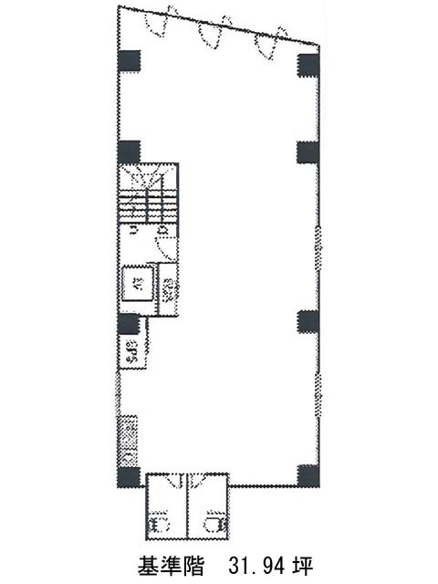
日本橋MMIビルの物件情報
日本橋MMIビル(中央区日本橋本町)は三越前駅(A4番出口)から徒歩4分の賃貸オフィスです。日本橋MMIビルは三越前駅(A4番出口)の他に新日本橋駅(5番出口)徒歩4分、小伝馬町駅(3番出口)徒歩8分で利用も可能です。

